Elkay LMABFWS-RF | Retrofit Bottle Filler | Filtered (For use with EMAB-style fountains)
Elkay LMABFWS-RF | Retrofit Bottle Filler | Filtered (For use with EMAB-style fountains) is backordered and will ship as soon as it is back in stock.
Couldn't load pickup availability
Product Care Information
Product Care Information
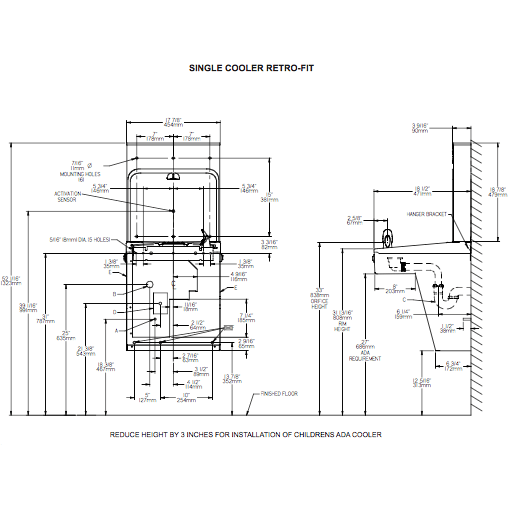
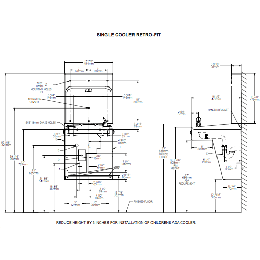
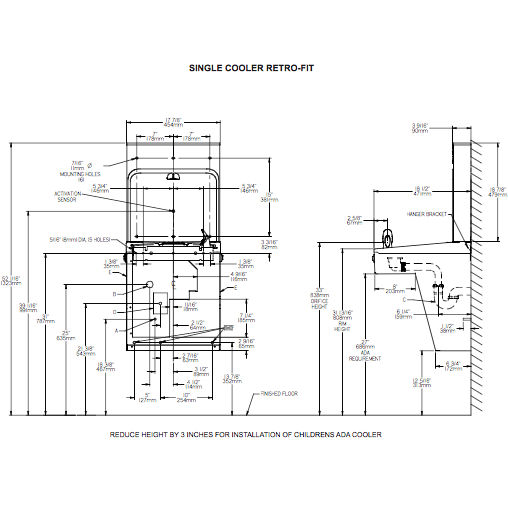
Installation
- Elkay & Halsey Taylor Bottle Filling Stations require installation from a licensed plumber. Email us at support@bottlefillingstations.com, and we can see if our network of service professionals cover your area.
- Requires access to electrical connection.
- Product also includes physical copy of installation instructions in package.
ezH2O Installation Video:
Maintenance
It is recommended to routinely clean your Bottle Filling Station with a soft cloth and mild dishwashing soap to spray and wipe down the unit. It is also recommended to clean the flexible fill mat. Remove the four screws to wipe beneath and on top of the mat.
ezH2O Maintenance Video:Filter Replacement
When filter status light turns to red, the filter needs to be changed. Here are some detailed instructions.
ezH20 Filter Change Video:
Do you have an existing 115V/60Hz LMABF style pushbar-activated model? If so, the Elkay LMABFWS-RF is a great option to transform your drinking fountain into a Bottle Filling Station.
We advise that NON-CHILLED fountains less than 10 years old are suitable for a retrofit. We advise that CHILLED fountains less than 5 years are suitable for a retrofit. Not sure how old your model is? We can find out for you. Email support@bottlefillingstations.com with your existing fountain’s serial #, which you can find at the bottom of your fountain. Please note existing fountain(s) must have been installed per spec.
- ADA compliant design
- Sanitary bottle fill created from hands-free sensor activation and recessed spout with 20 second auto shut-off system.
- Quick fill rate of 1.1 Gallons Per Minute
- Green Ticker™ tracks number of plastic bottles saved from waste.
VIEW SPEC SHEET HERE: Elkay LMABFWS-RF
|
FILTERED? |
Yes |
|
COOLER CABINET FINISH |
Stainless Steel |
|
POWER |
115V/60Hz |
|
BUBBLER OPTION |
None |
|
MOUNTING DETAILS |
Wall Mount (On-Wall) |
|
CHILLING DETAILS |
None |
|
Elkay LMABFWS-RF INSTALLATION LOCATION |
INDOOR |
|
NUMBER OF FOUNTAINS |
Single Bottle Filler |
|
DIMENSIONS |
D: 17-7/8" W: 3-9/16" H: 18-7/8" |
|
SHIPPING WEIGHT |
26 lbs |
|
Elkay LMABFWS-RF PRODUCT COMPLIANCE |
|
- ASSEMBLED IN USA
- ADA COMPLIANT
Includes:
- Retrofit Bottle Filler
- Basin with Drain Assy
- Water Sentry Filter
Warranty
Refrigeration System (IF APPLICABLE)
Elkay LMABFWS-RF refrigeration system includes 5 year limited warranty.
Electrical Parts & Water System
Elkay LMABFWS-RF warranty for electrical parts and water system is valid 18 months from the factory shipment or 12 months from the date of installation. The warranty will honor which ever date falls first. View more warranty details here.
Installation Notes
- Elkay LMABFWS-RF requires installation from licensed plumber. Email us at support@bottlefillingstations.com to be connected to our network of Bottle Filler installation professionals.
- Requires access to electrical connection.
- Product also includes physical copy of installation instructions in package.
- View detailed Elkay LMABFWS-RF MANUAL.
Maintenance
Cleaning
It is recommended to use soft cloth and mild dishwashing soap to spray and wipe down the unit. Routine cleaning is also suggested.
Filter Replacement (IF APPLICABLE)
When filter status light turns to red, the filter needs to be changed. Follow these steps:
1) Remove the bottom access panel.
2) Unplug unit
3) Unscrew old filter
4) Install new WaterSentry Plus filter.
5) Reset filter light back to green by removing top cover and pressing the black reset button. Select reset filter. The light should appear as green. Detailed instructions on filter light reset are included in produce package.
View VIDEO of CLEANING, FILTER REPLACEMENT, & FILTER LIGHT RESET instructions.
FAQ
Q: How long does it take to install this retrofit?
A: It varies, but the typical Bottle Filling Station retrofit install takes 1-2 hours.
Q: Does the retrofit come with a chiller?
A: No. The retrofit will utilize the compressor from your existing fountain (if applicable).
Q: How do I know if this is the most appropriate retrofit for my setup?
A: Please send the serial # of your existing fountain to support@bottlefillingstations.com. If you’re unable locate, please email us a picture of your existing fountain.
*ASSEMBLED IN THE UNITED STATES.
Experience the benefits of the very popular Elkay LMABFWS-RF Water Bottle Filling Station. Best Support, Fast Shipping, & Low Prices. CONTACT US NOW!
*FREE SHIPPING ON ALL ORDERS IN THE CONTINENTAL U.S. Limited time only!!
____________
UNITED STATES
Water filters and hand dryers ship free regardless of order size.
All orders in Continental U.S. over $7,000 qualify for FREE Shipping.
Exceptions may apply to islands and other remote territories.
All orders shipped by the carrier of our choice.
Estimated Shipping Time
All in stock orders received before 3PM EST will ship the same day. Orders received after 3PM will ship the following business day.
Water filters, hand dryers and indoor bottle fillers are our most popular in stock items.
Outdoor Tubular Drinking Fountains. - Evergreen normally ships in 5-15 days. Black, Gray and Blue ship in 2-4 weeks.
Please contact support@bottlefillingstations.com to confirm delivery time for a specific product or quantity.
Standard shipping
Standard shipping rates DO NOT include inside delivery and/or lift gate services. By selecting Standard Shipping, you are hereby declining these extra services.
*Note: If you are a school, and you select Standard Shipping, you are hereby declaring that you either have a receiving dock for deliveries, or you are able to get the package off of the truck yourself. Appointment required for all school deliveries.
Premium shipping
Premium shipping rates DO include inside delivery and/or lift gate services. Premium shipping is only available for freight deliveries (those that have refrigerated units, or some very large orders without refrigerated units).
**Note: If Standard Shipping is selected at time of purchase, and inside delivery is requested of the carrier by the consignee at time of delivery, an additional fee will be charged, and the consignee will be responsible.
Rates
Shipping fees vary depending on the state and order size. Standard shipping rates are described below.
*Premium shipping is also available on freight deliveries (those with refrigerated units, or some very large non-refrigerated orders). Premium rates are an extra $65 in addition to the Standard rate, and include inside delivery and lift gate service.
Please note that shipping rates are subject to change at any time. We reserve the right to charge an additional fee in addition to the regularly advertised shipping fee for shipping to remote areas not easily accessible by typical freight carrier means (i.e. islands only accessible by ferry). If your order falls into this category, you will be notified upon receipt of your order, and have the option to complete the purchase with additional fee or to cancel the order. Please note, these instances are very rare, as most locations are reachable by regular freight. If you have any questions, please contact us!



